Description
Sale Maisonette in Pembroke
Pembroke is a town in the Northern Region of Malta, and is considered the newest resort in the country. To the east is Paceville, Malta’s nightlife district. The coastal town and tourist centre of St. Julian’s is to the southeast, and the residential area of Swieqi is to the south. The hilltop village of Madliena is to the west, and Baħar iċ-Ċagħaq is to the northwest.
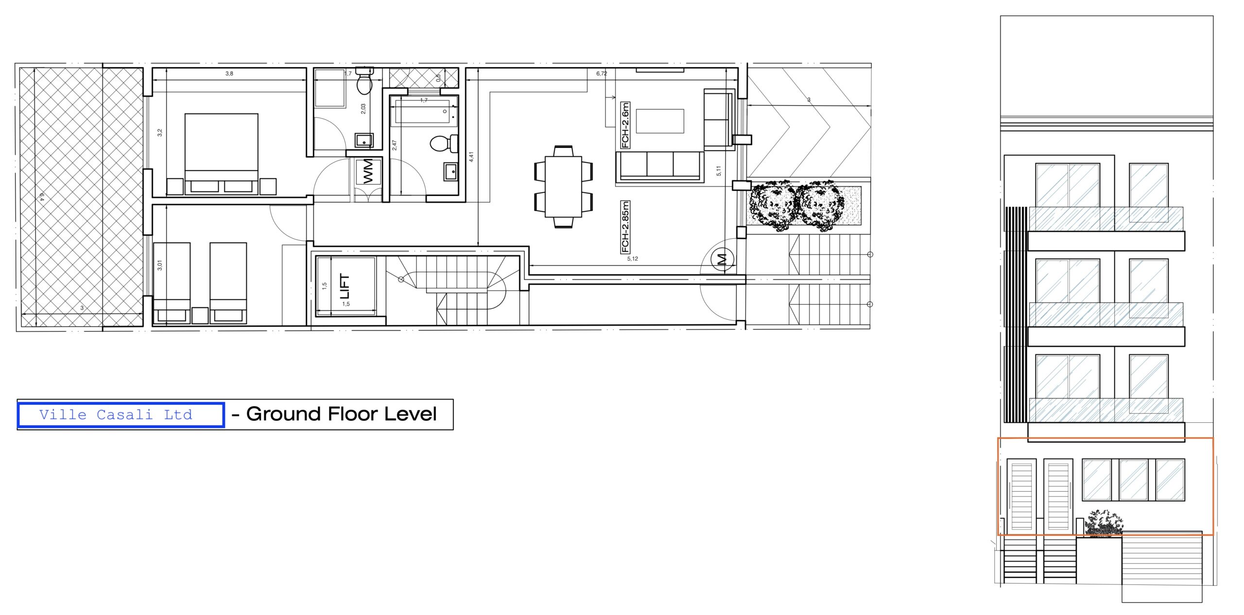
A new block of 5 apartments that seamlessly blends modern design with serene surroundings. Nestled in the heart of Pembroke.
Welcome to Palace Alex apartment- an exclusive property development in the heart of Pembroke – a small block of 2-bedroom residences.
Embrace the unique opportunity to reside in a carefully crafted space, offering a harmonious blend of comfort and luxury. Welcome home to a life of serenity and sophistication in this idyllic corner of Pembroke with a charming location having parks, schools, shops, pharmacies, bus stops and much more – all within walking distance.
The property is being sold finished, including bathrooms and internal doors.






Interior Finishings
Internal Walls plastered in gypsum rendering, finished with fina ‘frakass’ and painted in white
Plumbing, Electrical & Communications
A choice of 60x60cm gres & rectified Floor tiles laid to perfection (Skirting used with the same material)
Double glazed aluminum apertures in all internal shafts, yards and facades
Inspect screens
Video intercom system
Waterproofing in all terraces
Common Parts
Lift
Stairs in marble or Travertine
Landing in marble or Travertine
Staircase railing
Yard and/or large terrace if any: one one-way lighting point and one rainwater floor drain
Intercom linked to block the main door with automated lock
Numbered letterboxes
Numbered apartment front door
Drainage and rainwater piping
Automatic lighting
Membrane on terraces and on Roof
Plastering painting of internal shafts
GR1000 on party walls (apoggi)
Plastering of facades in Silacato
Rustproof railings in back balconies (if any)
Glass Railings for front terraces
Marble/Travertine window sills
Block name
Tiling of balconies, terraces, yards
Outdoor lighting as required.








